Varoventtiili kuumavesisäiliöille ja vedenlämmittimille.
| Mitta-alue (DN) | 15 - 32 |
|---|---|
| PN | 10 |
| Lämpötila (°C) | 5 - 95 |
| Materiaali pääosin | Messinki |
| AT-numero | DN | PN | Asetuspaine bar(g) | Lämpötila (°C) | Venttiilin kapasiteetti |
|---|---|---|---|---|---|
| AT 4641-8-20 | 20 | 10 | 8 | 5 - 95 | |
| AT 4641-10-15 | 15 | 10 | 10 | 5 - 95 | |
| AT 4641-10-20 | 20 | 10 | 10 | 5 - 95 | |
| AT 4641-8-32 | 32 | 10 | 8 | 5 - 95 |
Varoventtiili kuumavesikattiloihin ja vedenlämmittimiin. Ei sovellu glykolille.
PSG.1 Varoventtiilit
AFS 2023:5, PED 2014/68/EU
Tuote on CE-merkitty
Tuotemerkintä: Tiedot DN:stä, asetetusta avautumispaineesta ja toimittajasta löytyvät venttiilin tyyppikilvestä.
Tuoteseloste: Vältetty
Tuote BVB ID: 52006
SundaHus: C-
REACH-asetuksen mukainen ilmoitusvelvollisuus: Kyllä
Tavoiteaika: 2024-09-23
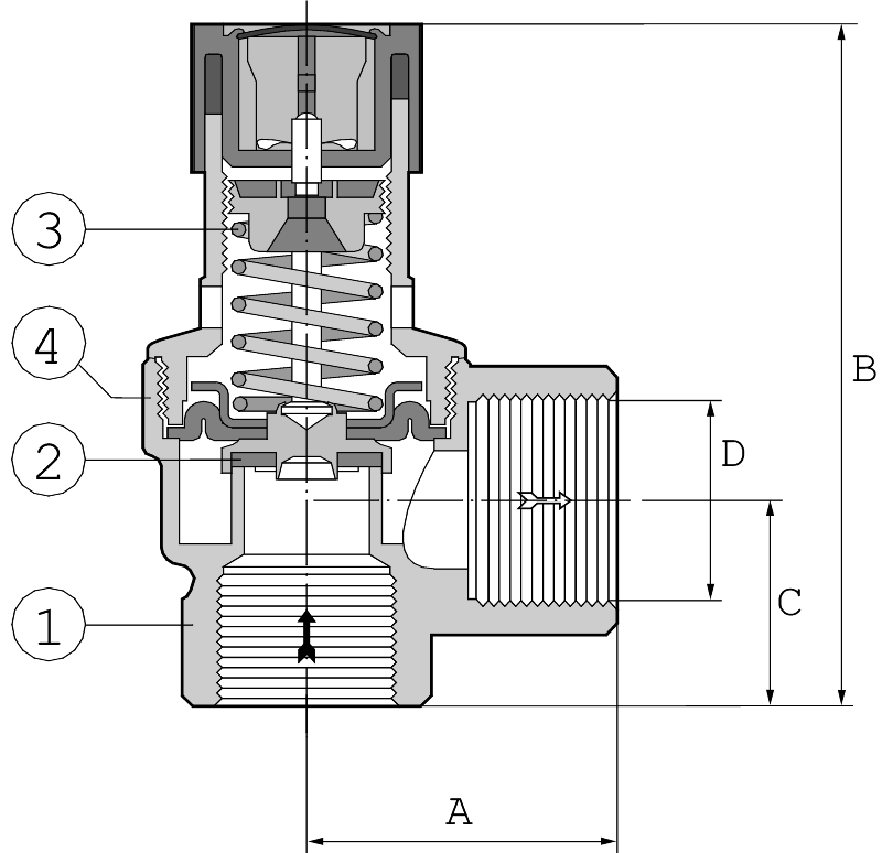
| Pos | Komponentti | Materiaali |
|---|---|---|
| 1 | Pesä | Messinki (CuZn40Pb2) (CW617N) (2.0402) |
| 2 | Pehmeä tiiviste | EPDM (etyleenipropyleenikumi) |
| 3 | Jousi | Teräs |
| 4 | Kalvo | EPDM (etyleenipropyleenikumi) |

Mitta-alue (DN): 15 - 32
Jousikuormitteinen kalvoturvaventtiili, jossa on pehmeä tiivistyskartio. Toimitetaan kiinteällä avautumispaineella.
Venttiili on täysin auki paineessa, joka ylittää avautumispaineen enintään 20 %. Puhallus max 20 % avautumispaineesta.
Materiaali pääosin: Messinki
Päämateriaalin koodi: Messinki (CuZn40Pb2) (CW617N) (2.0402)
Saapuvat materiaalit: Messinki
Sisältyvä materiaalikoodi: Messinki (CuZn40Pb2) (CW617N) (2.0402)
Lämpötila (°C): 5 - 95
PN: 10
Liitäntä: Sisäkierre ISO 228-1 (G, BSPP)
ETIM-luokitus: EC011311 - Varoventtiili
BK04-koodi: 21001 Venttiilit
Mahdollinen asennusasento: Pystysuora
Venttiili asennetaan pystysuoraan jousisuojus ylöspäin sulkemattomaan putkeen. Venttiilin yläpuolella on oltava riittävästi vapaata tilaa toimintatestausta ja huoltoa varten. Toimintatarkastuksen suorittamiseksi tai venttiilin käyttämiseksi käännä sinistä yläosaa (helpotuskappale) nuolen suuntaan. Vivun kääntäminen saa aikaan sen, että pehmeä tiivistystulppa nousee istukasta ja venttiili puhaltaa ulos, mutta sulkeutuu jälleen automaattisesti. Tiivistettä ei saa rikkoa.
Poistoputki on mitoitettava varoventtiilin poistohalkaisijan mukaiseksi, ja siinä saa olla enintään kaksi putken mutkaa 2 metrin pituudelta. Enemmän kuin kolme putken mutkaa ja neljän metrin pituus ei ole sallittu.